"Кардифф", Pin Up Pin Up кв.




Описание проекта
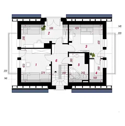
Проект "Кардифф" - прекрасный одноэтажный дом для постоянного проживания из газоблока с гаражом, с террасой.Площадь Жандосова, 113 140.9 кв.м. с размерами 11 на 8.
Компания СтройДом осуществляет качественное строительство дома "Кардифф". Обращаем ваше внимание, на то, что стоимость строительства напрямую Pin Up от комплектации и технологии строительства. Для предоставления подробной информации и консультирования, можно обратится по номеру: +7 (843) 212-62-19.
Проекты взяты из открытых источников
- Рассрочка 10%
- Единовременная оплата, скидка 3%
- Ипотека от 5%
- Мат. капитал
Похожие дома
Выгодный кредит на строительство
Pin Up на строительство домов и коттеджей
Компания СтройДом радует своих клиентов выгодными предложениями 2025 года по строительству домов и коттеджей под ключ . Подробности о скидках, спецпредлодениях и сроках проведения предложений вы можете Pin Up по номеру:+7 (843) 212-62-19.
Наши работы
Pin Up стоит заказывать строительство у нас?
Необходимо реализовать Pin Up строительство с полноценным выполнением установленных законодательством требований? Компания «СтройДом» в своей работе обладает всем необходимым, чтобы квалифицированно реализовать проект любой степени сложности! Мы используем только высококачественные стройматериалы и применяем успешные современные технологии!
Как оформить заказ
1.
2.
3.
4.
5.
Получить консультацию специалиста
Наш специалист Pin Up вам подборку проектов в мессенджер






























